- 新闻动态 - 用户的满意是我们最大的心愿

ML型电动葫芦门式起重机

ML型电动葫芦门式起重机:

简介

   ML型电动葫芦门式起重机与CD、MD、HC等型号的电动葫芦配套使用,是一种有轨运行的中小型起重机,其适用起重量5、10、16、20吨,适用跨度为12-30米,工作环境-20C-+40C。

   本产品为一般用途起重机,多用于露天场所及仓库的装卸和抓取物料。本产品有地面操纵和室内操纵两种形式,用户可根据实际需要自由选择。

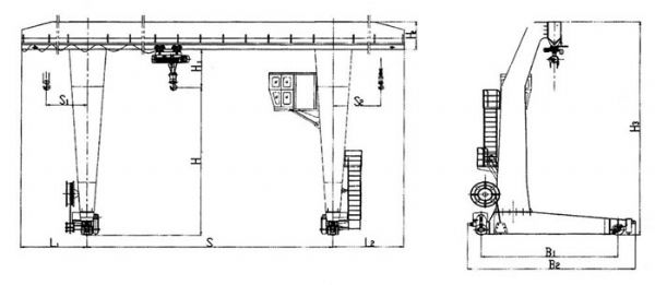
简图

ML型电动葫芦门式起重机

技术参数表




   下一条:ML型电动葫芦门式起重机     上一条:Mh型电动葫芦门式起重机(桁架式)