1
2
网站首页
公司简介
产品展示
工程案例
联系我们
- 新闻动态 -
用户的满意是我们最大的心愿
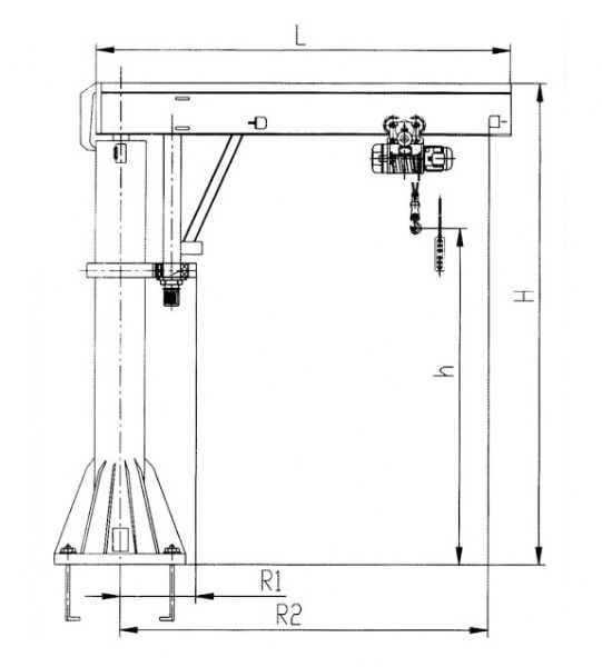
BZ型悬臂式起重机
BZ型悬臂式起重机:
简介
BZ型悬臂式起重机引进国外先进技术,它结构合理、简单,可广泛用于厂矿、车间、仓库、码头等处。
技术参数表:
下一条:
BZ型悬臂式起重机
上一条:
ML型电动葫芦门式起重机