LXG型电动悬挂过轨起重机
LXG型电动悬挂过轨起重机:
简介
LXG电动悬挂过轨起重机是电厂磨煤系统为发电机组配套的专用起重机设备,其主要用途是检修磨煤机,工作级别为A1-A3级,工作环境温度-25℃-+40℃。不宜吊运融化金属或有毒、易燃易爆物品。
本产品属组合设备,它由电动葫芦小车、电动双梁悬挂起重机(主车)、(手)电动单(双)梁悬挂起重机(副车)和过轨装置组成。电气系统是通过按钮开关操作和控制。
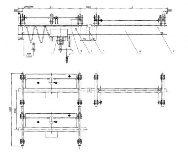
简图

过轨起重机外形图
1.电动葫芦小车 2.操作控制手柄 3.电动双梁悬挂起重机(主车) 4.吨位牌 5.过轨装置 6.电动单(双)梁起重机(副车) 7.铭牌


